Baurecht im W8 – und was macht die ARGE danach?
Liebe Poingerinnen und Poinger,
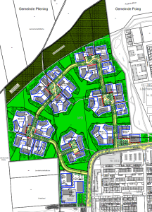
der Bauausschuss hat beschlossen, den Bebauungsplan für W8 in das Genehmigungsverfahren zu bringen. Dadurch erhält die Öffentlichkeit und alle relevanten Behörden die Möglichkeit, sich formal mit z. B. Einwänden zu beteiligen. Ziel ist es, in 2026 für das gesamte Areal Baurecht zu schaffen.
Damit ist die letzte Quartiersfläche der Arbeitsgemeinschaft am Bergfeld mit Baurecht versehen und die Bestimmung dieser in absehbarer Zeit erfüllt. Die ARGE ist aber mittlerweile weit mehr als nur das Sprachrohr der Bauträger. Vielmehr ist sie Mitorganisator, Kümmerer und Sponsor vieler Veranstaltungen sowie der Spiegel Poings nach Außen. Mein Ziel ist, dass diese Unterstützung und Verbindung nicht endet, auch wenn es die ARGE in der heutigen Form irgendwann nicht mehr geben wird. Ich denke wir sollten daran gemeinsam arbeiten.
Dabei hilft sicher auch, dass die Absicht der Bauträger besteht den Großteil der geplanten Wohnungen selbst im Bestand zu halten und zu vermieten.


db Stadtplan
Old icons created by Freepik - Flaticon, https://www.flaticon.com/free-icons/old

Billboard icons created by Freepik - Flaticon, https://www.flaticon.com/free-icons/billboard
Booth icons created by Freepik - Flaticon, https://www.flaticon.com/free-icons/booth